Zum Hauptinhalt springen

AOK‐Gebäude, Speyer

Immobilienart
Wohnen und Gewerbe
Wohn-/Nutzfläche
1.700 m²
Geschosse
3 + Spitzboden
Außenstellplätze
9
Fertigstellung
Q4/2023

Projektbeschreibung

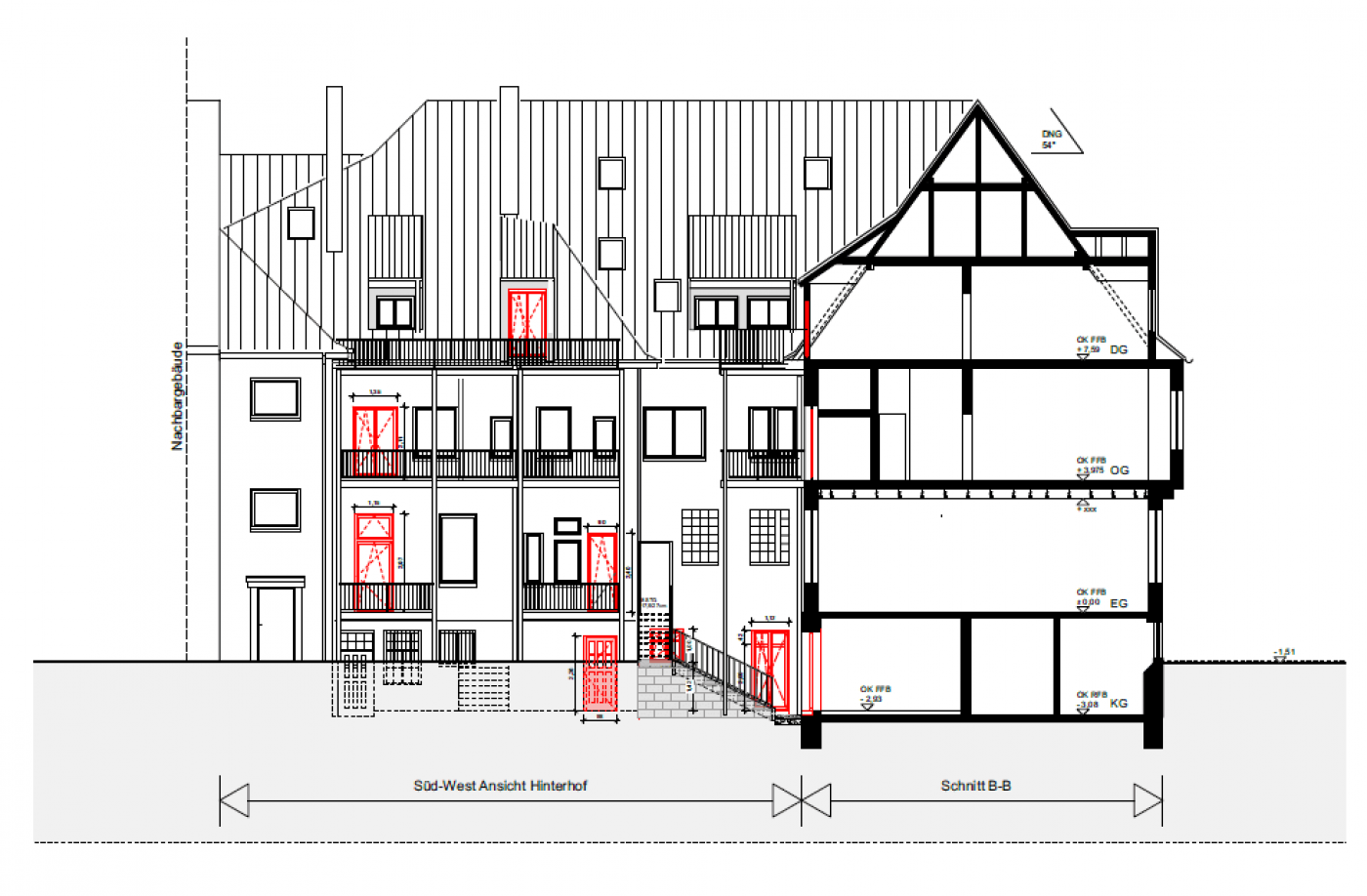
Umbau und Nutzungsänderung des unter Denkmalschutz stehenden AOK‐Gebäudes zu 1 Gewerbe‐ und 9 Wohneinheiten.

Leistungen

  • Leistungsphase 1‐8 der HOAI für Architekten
Weitere Projekte

Neubau von zwei Mehrfamilienhäusern mit 44 Wohneinheiten und Tiefgarage sowie eines Wohn- und Geschäftsgebäudes mit 20 Apartments und 4 Gewerbeeinheiten

Umbau und Nutzungsänderung des unter Denkmalschutz stehenden AOK‐Gebäudes zu 1 Gewerbe‐ und 9 Wohneinheiten.